Licht & verbinding
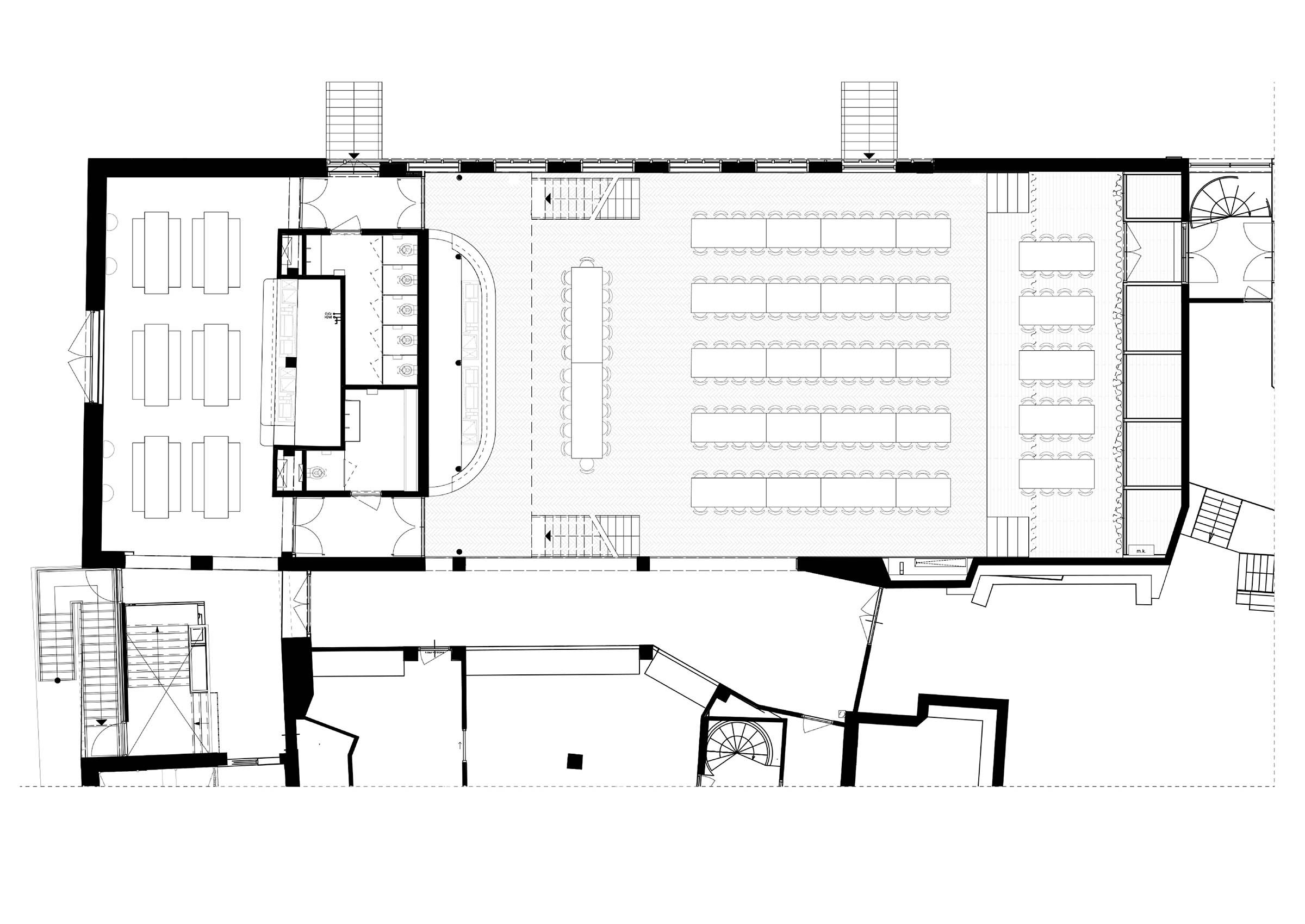
De Delftse Sociëteit Phoenix is gehuisvest in een gebouw waarin geschiedenis en architectuur samenkomen. De eetzaal, oorspronkelijk modernistisch vormgegeven in 1958, is in de loop der jaren sterk aangepast: entresol, voorzetwand, verkleinde ramen en technische installaties onder een zwart geschilderd plafond.
Het nieuwe ontwerp herstelt openheid en zichtlijnen, waarbij daglicht de ruimte als een verbindend element doorstroomt. Een centraal volume huisvest extra toiletten en deelt de zaal subtiel op, terwijl het podium en de mezzanine intimiteit bieden zonder het geheel te fragmenteren.
Het iconische golvende houten plafond keert terug, maar verfijnd: geïntegreerde techniek, akoestische isolatie en subtiele verlichting tussen de lamellen. Een door studenten ontworpen kroonluchter – een speelse knipoog naar de sociëteit – wordt het lichticoon van de zaal.
Grote ramen herstellen de relatie met buiten en brengen daglicht terug, met respect voor akoestiek en comfort. Het kleurenpalet – blauwtinten en zilver – eert zowel Delfts Blauw als de technologische geest van de TU, terwijl hout warmte en tactiliteit toevoegt.
De eetzaal wordt opnieuw een duurzame, hoogwaardige ontmoetingsplek waarin oorspronkelijke kwaliteiten als licht, ruimte en akoestiek in balans worden gebracht met een robuust, tijdloos interieur.
Eetzaal Delft
in samenwerking met Positive Space & Barthold Thijssen
Locatie: Delft
Programma: eetzaal studentenvereniging Phoenix
Status: (bijna) opgeleverd
Samenwerking: Linssen Ingenieursburo, Installateur van Dorp, Electrotechniek Rijndor, aannemer DuPrie, BigBrands, Roord Binnenbouw, de Ruijter interieur
snapshots bouw
tijdens de bouw
situatie voor de verbouwing

